Bio / Pharma
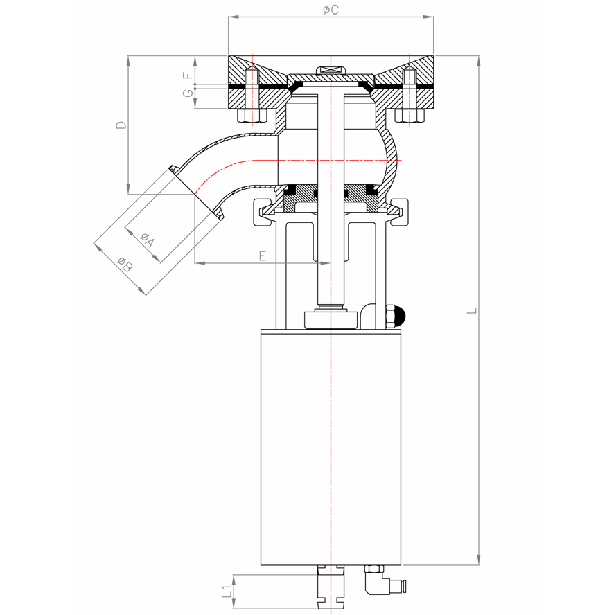
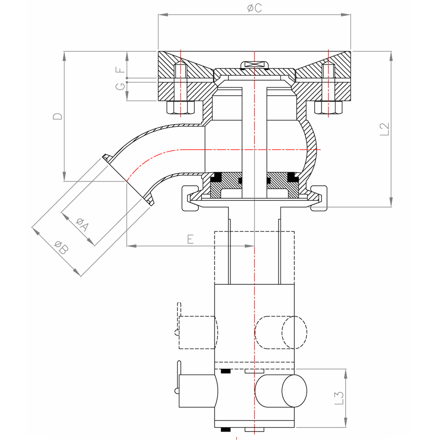
Tank Bottom Valve Actuated & Manual Type
Valve Size : 15mm to 100 mm Size (1/2" to 4")
Body MOC : SS 316L
Plug Stem MOC : SS 316L
Inlet & Outlet Connection : ,
Design : Inside Valve Opening & Outside (Inside Vessel) Opening.
Specially for Food, Pharmaceutical & Biotech Application
Features
Easy to clean and no corrosion problems.
Compact design and easy to handle.
| TANK VALVE | |||||
|---|---|---|---|---|---|
| SIZE | 1" | 1.5" | 2" | 2.5" | 3" |
| ØA | 22.1 | 34.8 | 47.5 | 60.2 | 72.9 |
| ØB | 50.5 | 50.5 | 64 | 77.5 | 91 |
| ØC | 110 | 140 | 150 | 180 | 200 |
| D | 56.8 | 95.1 | 106.5 | 124.7 | 137.5 |
| E | 65.8 | 93 | 106 | 125.5 | 149.5 |
| F | 14 | 20 | 20 | 20 | 20 |
| G | 10 | 14 | 14 | 14 | 14 |
| L | 190 | 354 | 360 | 446 | 450 |
| L1 | 22 | 31 | 31 | 39 | 39 |
| L2 | 94 | 122 | 127 | 158 | 164 |
| L3 | 30 | 35 | 35 | 45 | 45 |







