Bio / Pharma
Divert Aseptic Valve / Shut-Off Valve
Divert Aseptic Valve / Shut Off Valve Actuated & Manual Type
Valve Size : 15mm to 100 mm Size (1/2" to 4")
Body MOC : SS 316L
Plug Stem MOC : SS 316L Chromium Plated Surface.
End Connection : Weld End, Clamp End, SMS,DIN
Gasket for Flow area :
EPDM / Silicone / Viton (FKM) / PTFE
(Compliance with FDA 21CFR 177.2600 and USP Class VI.)
Specially for Food, Pharmaceutical & Biotech application.
Pneumatic Actuator :
Actuator MOC : SS 304
Spring MOC: SS 304
Piston MOC : SS 304
Features
- Valve Equiped with different type of Flow ,F,L,T,Y,T / T
- The design of the Valve is preventing the bacteria to polluting the valve inner chamber when the spindle moves up for contact with outside not sterilization air.
- The sterilization chamber uses high temperature steam to completely sterilize the spindle to avoid any pollution into the Valve Inner chamber.
- The valve body adopts 316L anti-corrosion material and Aseptic special PTFE seat.
- Control box for auto actuator & Divert Valve
- Auto control box available with various accessories.
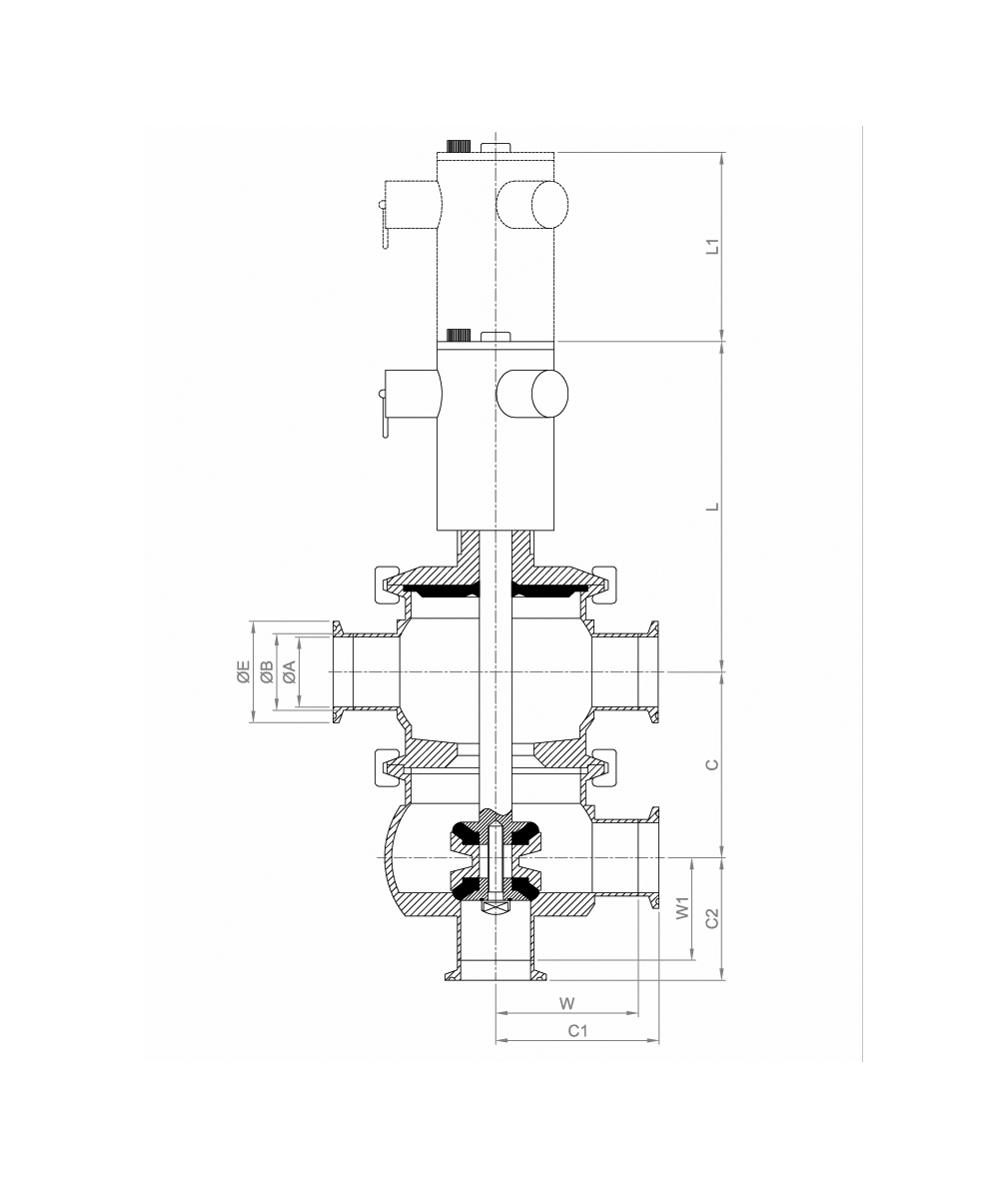
| DIVERT ASEPTIC VALVE | ||||||
|---|---|---|---|---|---|---|
| SIZE | 1" | 1.5" | 2" | 2.5" | 3" | 4" |
| ØA | 22.1 | 34.8 | 47.5 | 60.2 | 72.9 | 97.4 |
| ØB | 25.4 | 38.1 | 50.8 | 63.5 | 76.2 | 101.6 |
| C | 56.7 | 80 | 92.4 | 120 | 128 | 150.8 |
| C1 | 63.5 | 69.9 | 88.9 | 88.9 | 95.3 | 114.3 |
| C2 | 63.5 | 69.9 | 88.9 | 88.9 | 95.3 | 114.3 |
| C3 | 81.4 | - | - | - | - | - |
| E | 50.5 | 50.5 | 64 | 77.5 | 91 | 119 |
| W | 50.8 | 57.2 | 76.2 | 76.2 | 82.6 | 98.5 |
| W1 | 50.8 | 57.2 | 76.2 | 76.2 | 82.6 | 98.5 |
| L | 101 | 126 | 135 | 167 | 170 | 645.7 |
| L1 | 17 | 25 | 25 | 32 | 36 | 38 |
| Y | 96.1 | 142.3 | 168.6 | 211.6 | 244.7 | 303.1 |
| Y1 | 121.5 | 167.7 | 194 | 237 | 270.1 | 334.7 |
| (W/W1)+SMS Male | 19 | 23 | 23 | 27 | 27 | - |
| (W/W1)+IDF Male | 21.5 | 21.5 | 21.5 | 21.5 | 21.5 | - |
| (W/W1)+RJT Male | 27 | 27 | 27 | 27 | 27 | - |





